
価格 |
3,999万円 |
||
---|---|---|---|
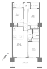
間取 |
3LDK+S |
築年月 |
1999/12(築25年) |
専有面積 |
69.04m²(20.88坪) |
総戸数 |
129戸 |
所在階 |
2階 |
建物階数 |
地上19階 地下1階建 |
所在地 |
千葉市美浜区高洲3丁目 |
||
交通 |
JR京葉線稲毛海岸駅まで 徒歩4分 |
お電話でのお問い合わせ
物件番号:4297
お電話でお問い合わせの際は、物件番号をお伝えください。
043-239-7862
営業時間:10:00 AM - 7:00 PM
定休日:水曜日
ポイント
POINT
「ベイマークスクエアプラザコート」
■ワイズホームなら、仲介手数料半額対象物件です。通常、約138万円が半額で約69万円です。ローン代行手数料などの余分な費用は一切ありません。
■令和7年8月内装リノベーション済、内容:システムキッチン・ユニットバス・洗面化粧台・トイレ新規交換、建具交換、全室クロス貼替え、床フローリング貼替え、ハウスクリーニング
■京葉線稲毛海岸駅徒歩4分、スーパー「マリンピアイオン稲毛海岸店」まで徒歩2分と近くて便利です。
■ペット飼育可能(飼育細則有)、セコムによる安心の24時間管理
■敷地内に駐車場あり、月額12,000円~18,000円
■2階部分、南東向きです。二重床・二重天井構造、宅配ボックスあり
■ワイズホームなら、仲介手数料半額対象物件です。通常、約138万円が半額で約69万円です。ローン代行手数料などの余分な費用は一切ありません。
■令和7年8月内装リノベーション済、内容:システムキッチン・ユニットバス・洗面化粧台・トイレ新規交換、建具交換、全室クロス貼替え、床フローリング貼替え、ハウスクリーニング
■京葉線稲毛海岸駅徒歩4分、スーパー「マリンピアイオン稲毛海岸店」まで徒歩2分と近くて便利です。
■ペット飼育可能(飼育細則有)、セコムによる安心の24時間管理
■敷地内に駐車場あり、月額12,000円~18,000円
■2階部分、南東向きです。二重床・二重天井構造、宅配ボックスあり
物件詳細DETAIL
建物構造 |
鉄筋コンクリート造 |
間取詳細 |
LDK13.8、洋6、洋6、洋5 |
---|---|---|---|
土地権利 |
所有権 |
用途地域 |
商業地域 |
取引態様 |
一般媒介 |
バルコニ面積 |
12.4m² |
駐車場 |
空有 |
駐車場月額 |
12,000円 |
管理組合 |
有 |
管理形態 |
全部委託 |
管理会社 |
野村不動産パートナーズ株式会社 |
管理人状況 |
日勤 |
管理費 |
12,600円 |
修繕積立費 |
22,770円 |
引渡時期 |
即時 |
諸費用 |
|
周辺環境 |
学区 |
高洲第三小学校 160m
高洲第一中学校 800m |
|
特色/設備 |
【内装リノベーション】エレベータ、オートロック、ペット飼育可、二階以上、宅配ボックス、駐車場、都市ガス |
||
情報更新日 |
2025年10月23日 |
次回更新予定日 |
2025年10月24日 |
取引条件有効期限 |
2025年10月30日 |
※掲載されている物件データが現状と異なる場合は現状を優先します。
周辺地図MAP

株式会社ワイズホームCOMPANY
所在地 |
千葉県千葉市花見川区検見川町3-304-7 |
||
---|---|---|---|
免許番号 |
千葉県知事免許(3)第16815号 |
||
会員 |
(公社)全日本不動産協会
(公社)不動産保証協会
(公社)首都圏不動産公正取引協議会
|
||
電話番号 |
043-239-7862 |
FAX番号 |
043-239-7863 |
営業時間 |
10:00 AM - 7:00 PM |
定休日 |
水曜日 |