
価格 |
2,080万円 |
||
---|---|---|---|
間取 |
3LDK |
築年月 |
1982/03(築43年) |
専有面積 |
82.46m²(24.94坪) |
総戸数 |
252戸 |
所在階 |
12階 |
建物階数 |
地上14階建 |
所在地 |
千葉市花見川区幕張町3丁目 |
||
交通 |
JR総武中央線幕張駅まで 徒歩17分
京成千葉線京成幕張まで 徒歩14分 |
お電話でのお問い合わせ
物件番号:4334
お電話でお問い合わせの際は、物件番号をお伝えください。
043-239-7862
営業時間:10:00 AM - 7:00 PM
定休日:水曜日
ポイント
POINT
「幕張ハウス」
■令和7年8月内装リノベーション済。南西向きの12階部分、日照・眺望良好
■リノベーション内容:全室クロス貼替え済、システムキッチン・ユニットバス・洗面化粧台・トイレ新規交換済、床フローリング張替え、建具交換、電気温水器(追焚き可)交換、照明器具設置、ハウスクリーニング
■駐車場空きあり、月額6,000円(空き状況は確認を要します)。ペット飼育可能。
■当社なら、仲介手数料半額対象物件です。通常、約75万円が半額で約37万円です。ローン代行手数料などの余分な費用も一切ありません。
■令和7年8月内装リノベーション済。南西向きの12階部分、日照・眺望良好
■リノベーション内容:全室クロス貼替え済、システムキッチン・ユニットバス・洗面化粧台・トイレ新規交換済、床フローリング張替え、建具交換、電気温水器(追焚き可)交換、照明器具設置、ハウスクリーニング
■駐車場空きあり、月額6,000円(空き状況は確認を要します)。ペット飼育可能。
■当社なら、仲介手数料半額対象物件です。通常、約75万円が半額で約37万円です。ローン代行手数料などの余分な費用も一切ありません。
物件詳細DETAIL
建物構造 |
鉄骨鉄筋コンクリート造 |
間取詳細 |
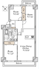
LDK16.8、洋7.6、洋7.2、洋5.6 |
---|---|---|---|
土地権利 |
敷地権 |
用途地域 |
無指定 |
取引態様 |
一般媒介 |
バルコニ面積 |
10.5m² |
駐車場 |
空有 |
駐車場月額 |
6,000円 |
管理組合 |
有 |
管理形態 |
全部委託 |
管理会社 |
住友不動産建物サービス株式会社 |
管理人状況 |
日勤 |
管理費 |
7,800円 |
修繕積立費 |
15,670円 |
引渡時期 |
即時 |
諸費用 |
|
周辺環境 |
学区 |
幕張東小学校 300m
幕張中学校 700m |
|
特色/設備 |
【仲介手数料半額】内装リノベ、エレベータ、駐車場、電気温水器、ペット飼育可、二階以上 |
||
情報更新日 |
2025年10月23日 |
次回更新予定日 |
2025年10月24日 |
取引条件有効期限 |
2025年10月30日 |
※掲載されている物件データが現状と異なる場合は現状を優先します。
周辺地図MAP

株式会社ワイズホームCOMPANY
所在地 |
千葉県千葉市花見川区検見川町3-304-7 |
||
---|---|---|---|
免許番号 |
千葉県知事免許(3)第16815号 |
||
会員 |
(公社)全日本不動産協会
(公社)不動産保証協会
(公社)首都圏不動産公正取引協議会
|
||
電話番号 |
043-239-7862 |
FAX番号 |
043-239-7863 |
営業時間 |
10:00 AM - 7:00 PM |
定休日 |
水曜日 |